Espace propriétaire
fr
Alerte e-mail

Votre recherche

Exclusivité
Marbache (54820)

4 pièces - 101,26 m²

Maison 4 pièces 100,86 m² MARBACHE 54820

197 000 €
Ref : EVMA10000137
Découvrir le bien

Maison familiale à vendre à Marbache – Jardin, garage et beau potentiel

Elysia Immobilier vous propose de découvrir cette maison familiale à vendre à Marbache, idéalement située à proximité des commerces, des écoles et des commodités. Construite dans les années 1970, cette maison développe une surface habitable de 100,86 m² sur une parcelle de 338 m². Implantée dans une rue calme et peu passante, elle offre un cadre de vie agréable et recherché sur le secteur de Marbache, à quelques minutes des principaux axes et des communes environnantes.

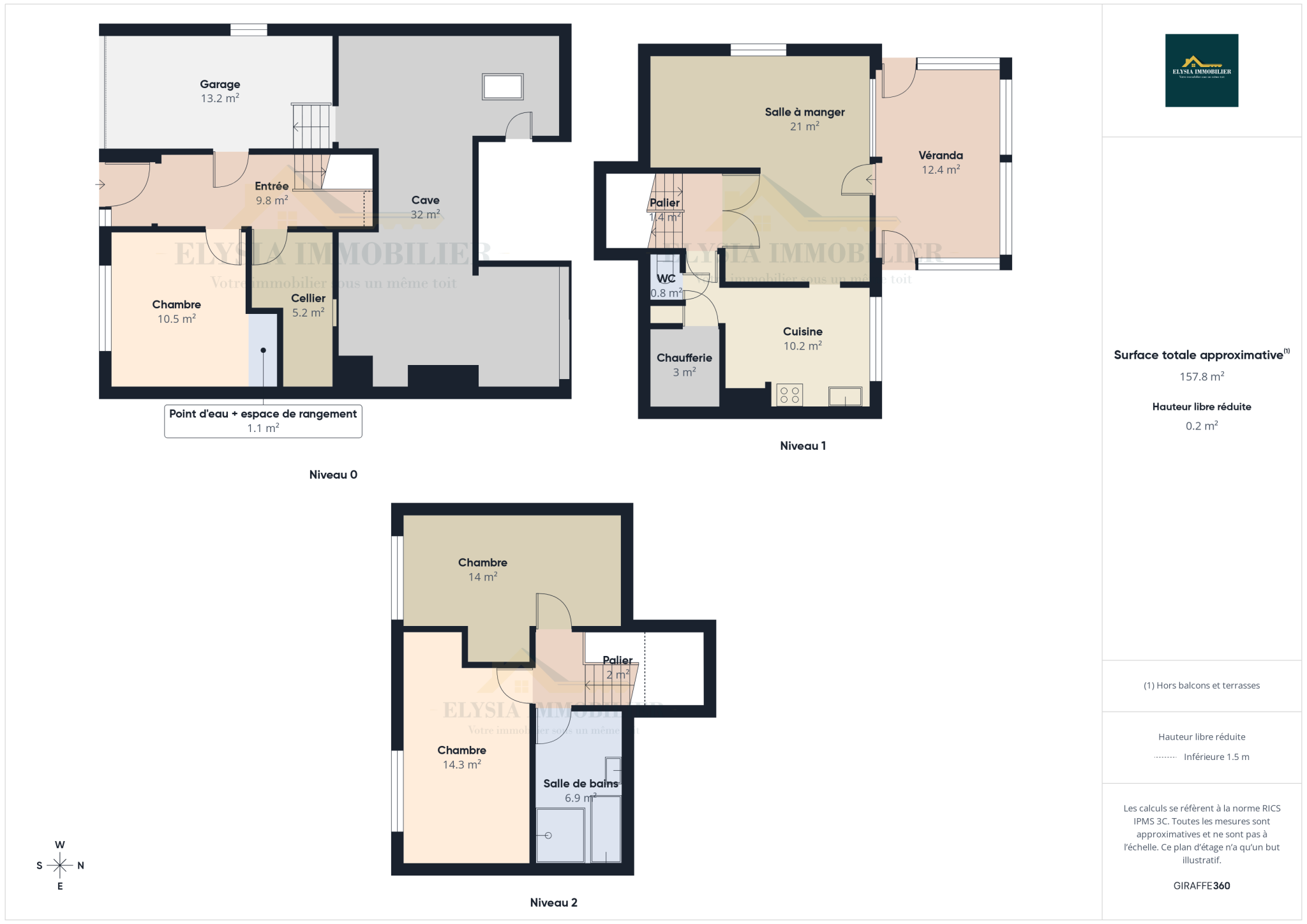
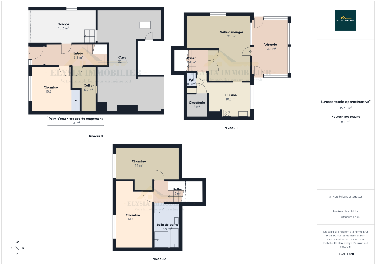
Une maison lumineuse et bien agencée

L’entrée de la maison dessert une première chambre de 11,93 m² avec point d’eau, idéale pour créer un espace indépendant, un bureau ou une chambre d’amis, ainsi qu’un cellier pratique pour le rangement.

En rez-de-jardin, vous découvrirez un salon-séjour lumineux de 21,15 m², bénéficiant d’un accès direct à une véranda, qui prolonge agréablement l’espace de vie vers l’extérieur et vers le jardin clos. Ce niveau comprend également une cuisine indépendante, un WC séparé ainsi qu’une chaufferie.

À l’étage, l’espace nuit se compose d’une salle de bains et de deux chambres spacieuses de 14,28 m² et 14,52 m², offrant de beaux volumes et un cadre confortable pour une famille.

Garage et espaces de stockage

La maison dispose également d’un garage avec porte motorisée, un véritable atout pour le stationnement et le confort quotidien. Une cave en sous-sol vient compléter le bien et offre un espace de stockage supplémentaire, toujours apprécié dans une maison familiale.

Un jardin agréable pour profiter de l’extérieur

À l’arrière de la maison, vous profiterez d’un jardin clos, idéal pour les moments de détente, les repas en extérieur ou les jeux des enfants. Cet espace extérieur permet de profiter pleinement d’un cadre verdoyant et paisible au cœur de Marbache.

Un bien avec fort potentiel après rénovation

Des travaux de rénovation sont à prévoir, mais cette maison à fort potentiel à Marbache représente une belle opportunité immobilière pour un projet familial ou une première acquisition. Elle pourra notamment convenir à des primo-accédants souhaitant bénéficier d’un financement avec le prêt à taux zéro (PTZ).

Pour en savoir plus, contactez votre agence Elysia Immobilier.

Les informations sur les risques auxquels ce bien est exposé sont disponibles sur le site Géorisques : "www.georisques.gouv.fr".

TRAD_ZEPHYR_Caracteristique TRAD_ZEPHYR_Valeurs
Code postal 54820
surface terrain 1 619 m²
Surface loi Carrez (m²) 100,86 m²
Nombre de chambre(s) 3
Nombre de pièces 4
Nombre de niveaux 3
Vue façade
TRAD_ZEPHYR_Caracteristique TRAD_ZEPHYR_Valeurs
Nb de salle de bains 1
Cuisine Séparée
Murs mitoyens 1
Nombre de garage 2
Cave OUI
Nombre de parking 1
Exposition Sud
Année de construction 1970
Terrain arboré OUI
TRAD_ZEPHYR_Caracteristique TRAD_ZEPHYR_Valeurs
Copropriété OUI
nombre de lots 3
TRAD_ZEPHYR_Caracteristique TRAD_ZEPHYR_Valeurs
Prix de vente honoraires TTC inclus 197 000 €
Prix de vente honoraires TTC exclus 185 000 €
Honoraires TTC à la charge acquéreur 6,49 %
Taxe foncière annuelle 980 €
Rez de chaussée
garage 13.24 m²

cellier 5.32 m²

chambre 12.15 m²

ch 1

entrée 7.96 m²

Etage 2
chambre 14.52 m²

ch 3

chambre 14.38 m²

ch 2

salle de bain 7.05 m²

dégagement 2.05 m²

Etage -1
cave 32 m²

Etage 1
WC 0.87 m²

véranda 12.8 m²

chaufferie 3.06 m²

cuisine 10.67 m²

salon/sejour 21.38 m²

dégagement 1.45 m²

DPE GES
Contacter pour ce bien
L'agence
Téléphone 06 29 32 56 47
Siège social
7 rue Général Foy 54200 Toul

* Champ obligatoire

Les informations recueillies sur ce formulaire sont enregistrées dans un fichier informatisé par La Boite Immo agissant comme Sous-traitant du traitement pour la gestion de la clientèle/prospects de l'Agence / du Réseau qui reste Responsable du Traitement de vos Données personnelles. La base légale du traitement repose sur l'intérêt légitime de l'Agence / du Réseau. Elles sont conservées jusqu'à demande de suppression et sont destinées à l'Agence / au Réseau. Conformément à la loi « informatique et libertés », vous disposez des droits d’accès, de rectification, d’effacement, d’opposition, de limitation et de portabilité de vos données. Vous pouvez retirer votre consentement à tout moment en contactant directement l’Agence / Le Réseau. Consultez le site https://cnil.fr/fr pour plus d’informations sur vos droits. Si vous estimez, après avoir contacté l'Agence / le Réseau, que vos droits « Informatique et Libertés » ne sont pas respectés, vous pouvez adresser une réclamation à la CNIL. Nous vous informons de l’existence de la liste d'opposition au démarchage téléphonique « Bloctel », sur laquelle vous pouvez vous inscrire ici : https://www.bloctel.gouv.fr Dans le cadre de la protection des Données personnelles, nous vous invitons à ne pas inscrire de Données sensibles dans le champ de saisie libre.
Ce site est protégé par reCAPTCHA, les Politiques de Confidentialité et les Conditions d'Utilisation de Google s'appliquent.

Découvrir nos outils